Поможем найти офис в аренду!
Снять офис
Москва, Орджоникидзе д.11 с.11

Бизнес-центр "West Park"

  • Помещение 188 м2 Бизнес-центр West Park – фото объекта
Помещение 188 м2 Бизнес-центр West Park – фото объекта
188 м2
Адрес: Москва, Очаковское шоссе, 34
Тип недвижимости: Бизнес-центр
Округ: ЗАО
Метро: Юго-Западная (7 минут транспортом)
Раменки (10 минут транспортом)
Проспект Вернадского (12 минут транспортом)
Класс объекта: B+
Тип помещения: Офисное
Наличие мебели: Без мебели
ПАРКОВКА
Подземная:
нет
Наземная:
да
коэф. 1/806 500 руб.
Городская:
да
Бесплатная
В Бизнес-центре "West Park" в аренду сдается офисное помещение площадью 188 кв.м. БЦ находится по адресу: г. Москва, Очаковское шоссе, д.29., пятнадцати минутах езды от метро Юго-Западная. Здание класса В+. В БЦ есть наземный паркинг, 6500 рублей в мес. Также имеется развитая инфраструктура: кафе, терминал оплаты связи, снековые автоматы.
Площадь, м2 Этаж Стоимость, м2/год Стоимость в месяц
188 5 15 000 руб. 235 000 руб.


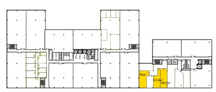
План помещения

Помещение 188 м2
Налоги Состояние Тип
НДС оплачивается отдельно С отделкой Офисное

Организовать просмотр

Я даю согласие на обработку моих персональных данных в соответствии с Условиями

Другие помещения в данном бизнес-центре

Площадь: 71 м2

  • Этаж: 5
  • Тип помещения: Офисное
  • Состояние: С отделкой
  • Наличие мебели: Без мебели
  • Стоимость: 10200 руб. за м2 в год

Площадь: 78 м2

  • Этаж: 4
  • Тип помещения: Офисное
  • Состояние: С отделкой
  • Наличие мебели: Без мебели
  • Стоимость: 10200 руб. за м2 в год

Площадь: 78 м2

  • Этаж: 2
  • Тип помещения: Офисное
  • Состояние: С отделкой
  • Наличие мебели: Без мебели
  • Стоимость: 13200 руб. за м2 в год