Поможем найти офис в аренду!
Снять офис
Москва, Орджоникидзе д.11 с.11

Бизнес-центр "Староалексеевская, 5"

53.4 м2
Адрес: Москва, Староалескеевская, 5
Тип недвижимости: Бизнес-центр
Округ: СВАО
Метро: Алексеевская (5 минут пешком)
ВДНХ (11 минут пешком)
Рижская (22 минуты пешком)
Класс объекта: B
Тип помещения: Офисное
Наличие мебели: Без мебели
ПАРКОВКА
Подземная:
нет
Наземная:
нет
Городская:
да
Бесплатная
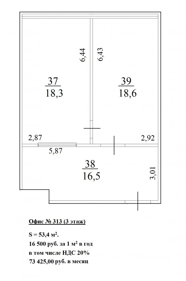
Сдается офис площадью 53,4 кв.м. в бизнес-центре "Староалексеевская 5", в шаговой доступности от станции метро Алексеевская. Офис состоит из 3ех кабинетов с отделкой.
Площадь, м2 Этаж Стоимость, м2/год Стоимость в месяц
53.4 3 16 500 руб. 73 425 руб.


План помещения

Помещение 53.4 м2
Налоги Состояние Тип
НДС оплачивается отдельно С отделкой Офисное

Организовать просмотр

Я даю согласие на обработку моих персональных данных в соответствии с Условиями

Другие помещения в данном бизнес-центре

Площадь: 51.5 м2

  • Этаж: 5
  • Тип помещения: Офисное
  • Состояние: С отделкой
  • Наличие мебели: Без мебели
  • Стоимость: 16000 руб. за м2 в год

Площадь: 51.8 м2

  • Этаж: 4
  • Тип помещения: Офисное
  • Состояние: Под отделку
  • Наличие мебели: Без мебели
  • Стоимость: 16500 руб. за м2 в год

Площадь: 53.5 м2

  • Этаж: 2
  • Тип помещения: Офисное
  • Состояние: С отделкой
  • Наличие мебели: Без мебели
  • Стоимость: 16500 руб. за м2 в год