Поможем найти офис в аренду!
Снять офис
Москва, Орджоникидзе д.11 с.11

Бизнес-центр "Семеновская площадь, 7"

  • Помещение 280 м2 Бизнес-центр Семеновская площадь, 7 – фото объекта
Помещение 280 м2 Бизнес-центр Семеновская площадь, 7 – фото объекта
280 м2
Адрес: Москва, Семеновская площадь, 7
Тип недвижимости: Бизнес-центр
Округ: ВАО
Метро: Семеновская (1 минута пешком)
Электрозаводская (10 минут пешком)
Преображенская площадь (16 минут пешком)
Класс объекта: C
Тип помещения: Офисное
Наличие мебели: Без мебели
ПАРКОВКА
Подземная:
нет
Наземная:
да
коэф. 1/805 000 руб.
Городская:
да
Бесплатная
В бизнес-центре класса "В" в аренду предлагается офисное помещение, площадью 280 м2 на 6 этаже. В блоке кабинетной планировки выполнена стандартная офисная отделка в светлых тонах (представлены фотографии типовой отделки). Арендная ставка составляет 15 000 руб. м2 в год, УСН, включая эксплуатационные и коммунальные расходы. Электроэнергия оплачивается дополнительно. В здании проведены все необходимые инженерно-технические коммуникации. На территории располагается развитая инфраструктура, а также охраняемый наземный паркинг (5 000 руб. в мес. 1 м./м.). Удобное расположение: от станции метро "Семеновская" - 2 минуты пешком. Офис полностью готов к въезду.
Площадь, м2 Этаж Стоимость, м2/год Стоимость в месяц
280 6 15 000 руб. 350 000 руб.


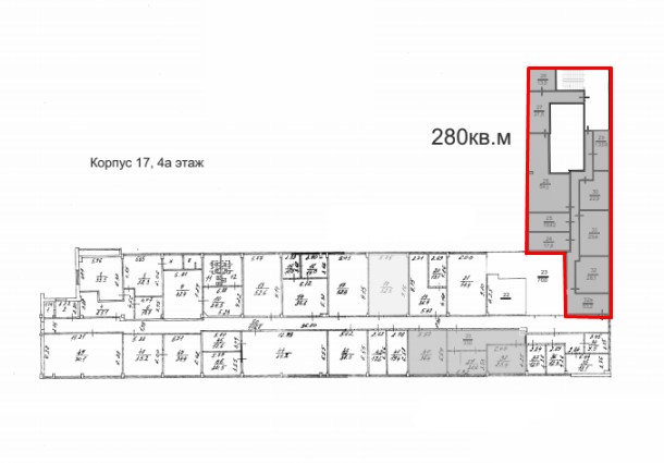
План помещения

Помещение 280 м2
Налоги Состояние Тип
УСН С отделкой Офисное

Организовать просмотр

Я даю согласие на обработку моих персональных данных в соответствии с Условиями

Другие помещения в данном бизнес-центре

Площадь: 190 м2

  • Этаж: 6
  • Тип помещения: Офисное
  • Состояние: С отделкой
  • Наличие мебели: Без мебели
  • Стоимость: 15000 руб. за м2 в год

Площадь: 350 м2

  • Этаж: 6
  • Тип помещения: Офисное
  • Состояние: С отделкой
  • Наличие мебели: Без мебели
  • Стоимость: 15000 руб. за м2 в год