Поможем найти офис в аренду!
Снять офис
Москва, Орджоникидзе д.11 с.11

Бизнес-центр "Новоспасский двор"

Увы, офисное помещение уже сдано. Свяжитесь с нами для уточнения информации.
  • Помещение 819 м2 Бизнес-центр Новоспасский двор – фото объекта
Помещение 819 м2 Бизнес-центр Новоспасский двор – фото объекта
819 м2
Адрес: Москва, Дербеневская набережная, 7А
Тип недвижимости: Бизнес-центр
Формат объекта: Лофт
Округ: ЮАО
Метро: Пролетарская (12 минут пешком)
Крестьянская застава (12 минут пешком)
Павелецкая (15 минут пешком)
Класс объекта: B+
Тип помещения: Офисное
Наличие мебели: Без мебели
ПАРКОВКА
Подземная:
нет
Наземная:
да
коэф. 1/10013 000 руб.
Городская:
да
Платная60 руб. в час
В Бизнес-центре "Новоспасский Двор" в аренду сдается офисное помещение площадью 819 кв.м. БЦ расположен по адресу: г. Москва, Дербеневская набережная 7А., в двадцати минутах ходьбы от метро Павелецкая. Помещение на мансардном этаже с базовой отделкой. Возможно объединение блока с 380,51 кв.м до общей площади 1 199,9 кв.м. В блоке расположены: кухня, санузлы, переговорные комнаты, 2 серверные, зона ресепшен
Площадь, м2 Этаж Стоимость, м2/год Стоимость в месяц
819 3 19 500 руб. 1 330 875 руб.


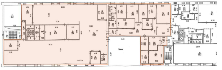
План помещения

Помещение 819 м2
Налоги Состояние Тип
НДС оплачивается отдельно С отделкой Офисное

Организовать просмотр

Я даю согласие на обработку моих персональных данных в соответствии с Условиями

Другие помещения в данном бизнес-центре

Площадь: 56 м2

  • Этаж: 2
  • Тип помещения: Офисное
  • Состояние: С отделкой
  • Наличие мебели: Без мебели
  • Стоимость: 22881 руб. за м2 в год

Площадь: 59 м2

  • Этаж: 2
  • Тип помещения: Офисное
  • Состояние: С отделкой
  • Наличие мебели: Без мебели
  • Стоимость: 21610 руб. за м2 в год

Площадь: 74.5 м2

  • Этаж: 4
  • Тип помещения: Офисное
  • Состояние: С отделкой
  • Наличие мебели: Без мебели
  • Стоимость: 22880 руб. за м2 в год