Поможем найти офис в аренду!
Снять офис
Москва, Орджоникидзе д.11 с.11

Бизнес-центр "9 акров, 1-ая очередь"

24.6 м2
Адрес: Москва, Научный проезд, 19
Тип недвижимости: Бизнес-центр
Округ: ЮЗАО
Район: Черёмушки
Метро: Калужская (10 минут пешком)
Новые Черёмушки (20 минут пешком)
Беляево (23 минуты пешком)
Класс объекта: B+
Тип помещения: Офисное
Наличие мебели: Без мебели
ПАРКОВКА
Подземная:
да
коэф. 1/10011 000 руб.
Наземная:
да
коэф. 1/1008 000 -10 000 руб.
Городская:
да
Платная40 руб. в час
В бизнес-центре класса В+ " 9 Акров" в аренду предлагается офисное помещение, площадью 24,6 кв. м. Коммерческие условия: Арендная ставка составляет 19 512 рублей за кв. м. в год, УСН. В стоимость арендной ставки также входят эксплуатационные расходы и коммунальные. Отдельно оплачивается уборка и Интернет. Описание помещения: Помещение расположено на 10-ом этаже. Помещение, предлагаемое в аренду, кабинетной планировки. Мокрых точек в помещении нет. Помещение с отделкой. Помещение светлое, за счет панорамных окон. Расположение здания: Здание Бизнес Центра расположено по адресу: Москва, Научный проезд, 19. Большой плюс Бизнес-Центра - его удобное расположение. Добраться до Бизнес-Центра "9 Акров" можно от станции метро Калужская (14 минут пешком), а также от станций " Новые Черемушки" (30 минут пешком). Рядом с Бизнес-Центром развитая инфраструктура, способствующая наиболее комфортному пребыванию арендаторов: минимаркеты, продуктовые магазины, рестораны, кафе, наземный и подземный городской транспорт, аптека, столовая, банкоматы и отделения банков. Технические характеристики здания: В здании имеется все необходимое для комфортной работы арендаторов: приточная вентиляция, центральное кондиционирование, центральное отопление и спринклерная система пожаротушения. В Бизнес-Центре 9 Акров имеется зона ожидания гостей, ресепшн, отделение банка и банкоматы. Помещение полностью готово к въезду.
Площадь, м2 Этаж Стоимость, м2/год Стоимость в месяц
24.6 10 19 512 руб. 40 000 руб.


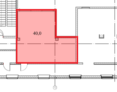
План помещения

Помещение 24.6 м2
Состояние Тип
С отделкой Офисное

Организовать просмотр

Я даю согласие на обработку моих персональных данных в соответствии с Условиями

Другие помещения в данном бизнес-центре

Площадь: 40 м2

  • Этаж: 10
  • Тип помещения: Офисное
  • Состояние: С отделкой
  • Наличие мебели: Без мебели
  • Стоимость: 19500 руб. за м2 в год

Площадь: 53 м2

  • Этаж: 4
  • Тип помещения: Офисное
  • Состояние: С отделкой
  • Наличие мебели: Без мебели
  • Стоимость: 15849 руб. за м2 в год

Площадь: 68 м2

  • Этаж: 4
  • Тип помещения: Офисное
  • Состояние: С отделкой
  • Наличие мебели: Без мебели
  • Стоимость: 15882 руб. за м2 в год