Поможем найти офис в аренду!
Снять офис
Москва, Орджоникидзе д.11 с.11

Бизнес-центр "Новослободский Loft"

Увы, офисное помещение уже сдано. Свяжитесь с нами для уточнения информации.
  • Помещение 234 м2 Бизнес-центр Новослободский Loft – фото объекта
  • Помещение 234 м2 Бизнес-центр Новослободский Loft – фото объекта
Помещение 234 м2 Бизнес-центр Новослободский Loft – фото объектаПомещение 234 м2 Бизнес-центр Новослободский Loft – фото объекта
234 м2
Адрес: Москва, Новослободская, 45Б
Тип недвижимости: Бизнес-центр
Формат объекта: Лофт
Округ: ЦАО
Район: Тверской
Метро: Менделеевская (4 минуты пешком)
Новослободская (7 минут пешком)
Белорусская (13 минут пешком)
Класс объекта: B+
Тип помещения: Офисное
Наличие мебели: Без мебели
ПАРКОВКА
Подземная:
нет
Наземная:
да
9 000 руб.
Городская:
да
Платная60 руб. в час
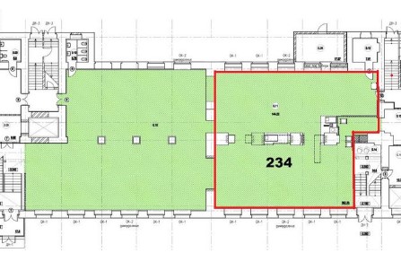
В аренду предлагается офисное помещение, площадью 234 м2 на -1 этаже бизнес-центра в стиле LOFT. Коммерческие условия: 20 000 м2 в год, с НДС. Эксплуатационные и коммунальные расходы оплачиваются дополнительно. Блок открытой планировки, с с/у и выполнена офисная отделка. Здание оборудовано всеми необходимыми коммуникациями для комфортной работы. На территории имеется наземный паркинг и развитая инфраструктура. Офис полностью готов к въезду.
Площадь, м2 Этаж Стоимость, м2/год Стоимость в месяц
234 -1 20 000 руб. 390 000 руб.


План помещения

Помещение 234 м2
Налоги Состояние Тип
НДС включен в стоимость С отделкой Офисное

Организовать просмотр

Я даю согласие на обработку моих персональных данных в соответствии с Условиями

Другие помещения в данном бизнес-центре

Площадь: 59 м2

  • Этаж: 3
  • Тип помещения: Офисное
  • Состояние: С отделкой
  • Наличие мебели: С мебелью
  • Стоимость: 22000 руб. за м2 в год

Площадь: 86.5 м2

  • Этаж: 3
  • Тип помещения: Офисное
  • Состояние: С отделкой
  • Наличие мебели: Без мебели
  • Стоимость: 22196 руб. за м2 в год

Площадь: 238 м2

  • Этаж: 2
  • Тип помещения: Офисное
  • Состояние: С отделкой
  • Наличие мебели: Без мебели
  • Стоимость: 22000 руб. за м2 в год